Edificios Judiciales
OBRA PÚBLICA – PATRIMONIO EDILICIO DEL PODER JUDICIAL
Las obras que surgen del presente informe son la materialización de uno de los objetivos centrales planificados por el Superior Tribunal de Justicia: la consolidación en el mediano plazo de un patrimonio edilicio propio del Poder Judicial, para contar con edificios adecuados a la función judicial, al trabajo de los agentes judiciales y a la mejor atención de los usuarios del servicio.
Más de 50 obras se licitaron o se ejecutaron con personal del Poder Judicial desde la implementación de la Reforma Procesal Penal. En total, el área de Infraestructura intervino en 32 inmuebles.
Las labores incluyeron la construcción desde cero de 6 inmuebles. Según un informe del área, se realizaron intervenciones en más 26.000 metros cuadrados, de los cuales 11.000 fueron sobre edificios ya existentes y otros 15.000 sobre nuevas superficies de trabajo y servicios.
Entre las obras se destacan la intervención en simultáneo en 11 inmuebles con 20 obras distintas, la construcción del Complejo Judicial de Villa Regina, la mejora de la sede central del Poder Judicial en Viedma -por primera vez de manera integral desde su inauguración hace más de 20 años-, la construcción de los nuevos Juzgados de Paz en Sierra Paileman y el recientemente inaugurado de Ramos Mexía, más el de Belisle que se encuentra en ejecución.
También se erigieron las oficinas para STJ, Consejo de la Magistratura y Gerencia Administrativa en Cipolletti.
Además, comenzó la construcción del Complejo Judicial de Cipolletti y se prevé en el corto plazo la construcción de los Juzgados de Paz de Allen, Huergo y Jacobacci.
También se generó un mejoramiento de condiciones laborales y de seguridad en inmuebles de toda la provincia y la modernización de espacios laborales en función de nuevos paradigmas y formas de trabajo.
Complejo Judicial de Cipolletti
El
llamado a licitación se realizó a principios de 2019.
El Poder Judicial habilitó el micrositio
en la sección Servicios Web de la página oficial para
la consulta abierta de planos y pliegos y para el seguimiento público
del estado de trámites de toda la obra pública que se
lleva adelante. El presupuesto oficial fue de 644.082.031,04 pesos y
el plazo de ejecución es de 900 días.
La Ciudad Judicial de Cipolletti será construida en un terreno donado por la municipalidad en el predio delimitado por las calles Naciones Unidas, Teniente Ibáñez, Puerto Rico y Pastor Bowdler.
El diseño de la Ciudad Judicial se hizo a través de un concurso público nacional. En una primera etapa se presentaron 21 proyectos, de los que se seleccionaron 5 y finalmente un equipo ganador, que debió terminar el proyecto según los requerimientos urbanísticos de la ciudad.
El edificio tendrá subsuelo, planta baja y dos pisos altos, resultando una superficie cubierta de 20.955,33 m2 en su totalidad.
El proyecto se dividirá en dos etapas, ejecutándose en esta primera lo referido al Fuero Penal que cuenta con una superficie cubierta de 11.178,13 m2.
A nivel funcional el edificio articula tres sectores: espacios públicos (plaza de acceso, hall de acceso y circulaciones públicas), espacios privados (circulaciones privadas, oficinas, salas, etc.) y servicios. Cuenta con tres sistemas independientes de circulación, una pública por donde puede moverse el público para acceder a las diferentes áreas de atención o espera, otra privada por donde únicamente pueden circular trabajadores judiciales y la tercera de uso exclusivo para detenidos. Las puertas o sectores de vinculaciones entre circulaciones serán restringidas y contarán con un sistema de control de acceso. Los ascensores forman parte de este sistema y cada uno de los sectores tiene medios de elevación que abastecen esos espacios sin que las circulaciones públicas y privadas se crucen.
El nivel de subsuelo además de contar con un área de estacionamiento, sectores de mantenimiento y salas de maquinas albergará dos programas específicos del Complejo Judicial: alcaidía y morgue.
Apertura de sobres
El 31 de julio se conocieron las cinco ofertas de la licitación pública. El acto se realizó en el Auditorio del Poder Judicial en Viedma.
Participaron los jueces del Superior Tribunal de Justicia Ricardo Apcarián -delegado de la Cuarta Circunscripción- y Sergio Barotto, representantes de las áreas de Arquitectura, Administración y Asesoría Legal del Poder Judicial, e integrantes de las empresas interesadas.
Enlace al video: “Licitación Ciudad Judicial Cipolletti”
o directamente desde el reproductor:
Las ofertas:
UTE Zoppi – Riva y Codam: 986.615.945 pesos.
UTE Dinale y Pecam: 616.643.896 pesos.
Constructora Roque Mocciola: 912.948.989 pesos.
Bricons: 688.807.495 pesos.
Procon: 942.225.000 pesos, con una alternativa de 918.500.000 pesos en determinadas condiciones de plazo y anticipo.
El presupuesto oficial era de 644.082.031,04 pesos y el plazo de ejecución de 900 días.
La firma del contrato
Enlace al video: “Firma Contrato. Eduardo Titolo. Ciudad Judicial de Cipolletti
”
o directamente desde el reproductor:
La UTE Dinale y Pecam resultó adjudicada y firmó el contrato con el Poder Judicial para la ejecución el 7 de noviembre. La firma estuvo a cargo de Eduardo Titolo por la empresa y del administrador general del Poder Judicial, Carlos Derbalian. Participaron el juez del STJ Ricardo Apcarián, el coordinador del área de Infraestructura y Arquitectura Judicial César García y Juan Pereyra, director de Asesoramiento Técnico Legal.
Inicio de obra
Enlace al video: “Inicio de Obra. Ciudad Judicial de Cipolletti
”
o directamente desde el reproductor:
El 10 de diciembre, culminados los pasos administrativos, el Poder Judicial firmó con la UTE el acta de inicio de obra y entrega del terreno. El documento fue suscripto por el jefe de obra en representación, ingeniero Alberto do Río, y por el inspector del Poder Judicial, ingeniero Agustín Pisani. Se estipuló la fecha del 28 de mayo de 2022 para la finalización de la obra, quedando el predio bajo responsabilidad de la contratista.
El 18 de diciembre la empresa comenzó el traslado de maquinarias y equipos al terreno, para realizar el estudio de suelo que revele el comportamiento de las napas, información imprescindible para asentar las fundaciones.
Durante enero de 2020 avanzaron las excavaciones para la fundación, luego de deprimir las napas en los terrenos de la Ciudad Judicial. Los trabajos forman parte de las tareas preliminares para la ejecución de la obra, lo que incluye armado del obrador, depósito, oficinas, instalaciones provisionales de servicios de agua y luz, instalación de trailers, sanitarios y limpieza.
Complejo Judicial de Villa Regina
La construcción del Complejo Judicial de Villa Regina comenzó en 2018, registró importantes avances en 2019, y en los primeros meses de 2020 alcanzó una terminación del 65%. La obra está a cargo de la empresa Urban S.A. y se estableció un plazo de ejecución de 720 días, con una inversión de alrededor de 100 millones de pesos.
El edificio tendrá casi 2.700 metros cuadrados cubiertos: cerca de 1.700 m2 en planta baja y otros 1.000 en la planta alta. El edificio se emplaza en la avenida General Paz y Belgrano, en un terreno triangular de 4.755 metros cuadrados cedido por el Estado Municipal al Poder Judicial.
En febrero de 2019 se trabajó sobre la losa de la planta alta, tras el llenado de la losa y revoque grueso en la planta baja. También se ejecutaron las columnas y se colocó la cañería para el cableado eléctrico y de redes.
En mayo, más de 60 operarios trabajaron en las tareas de mampostería, encofrado y armado de escaleras de hormigón, revoque fino en algunos sectores, colocación de marcos y premarcos, terminación losa y ejecución de carpeta hidrófuga.
Las oficinas
Enlace al video: “Complejo Judicial Villa Regina”
o directamente desde el reproductor:
El Complejo Judicial de Villa Regina alcanzó el 50 % de avance en noviembre, cuando se colocaron los paneles internos para sectorizar cada dependencia. Le siguió la instalación de los equipos acondicionadores de aire, el tendido de las redes de datos y energía eléctrica, la colocación del cielorraso, los ductos de calefacción y el ascensor.
En diciembre, con 37 obreros trabajando, se realizaron las terminaciones de revoque exteriores, colocación de piso granítico y revestimientos, impermeabilización de losa, estructura metálica para cielorrasos de Durlock, pintura de paredes internas, instalaciones sanitarias y terminaciones de la instalación de agua. Además de la instalación de aire acondicionado con el montaje de los equipos Roof Top y tendido de conductos internos.
Juzgado de Paz de Coronel Belisle
El 23 de julio de 2019 se aprobó la licitación pública para la construcción del Juzgado de Paz de Coronel Belisle y se resolvió adjudicar la obra a la firma “Las dos A” de Fernández Oro.
Se previó un plazo de ejecución máximo de 360 días corridos, con un presupuesto ofrecido de 5.061.768 pesos.
La obra tendrá 90 metros cuadrados cubiertos. El Juzgado de Paz se emplazará en la esquina de las calles Don Bosco y Coronel Belisle, en una parcela de 50 x 25 metros cuadrados. El diseño fue realizado por el área de Arquitectura del Poder Judicial.
La licitación pública se enmarcó en el convenio entre el Ministerio de Justicia y Derechos Humanos de la Nación y el Superior Tribunal de Justicia de Río Negro. Con el mismo financiamiento actualmente se ejecutó el Juzgado de Paz de Ramos Mexía.
La obra comenzó en agosto, y en diciembre se levantaron las paredes. Para diciembre de 2019, la obra estaba en la etapa de vigas y encadenados.
Juzgado de Paz de Ramos Mexía
En febrero de 2019 comenzó el levantamiento de las paredes del Juzgado de Paz de Ramos Mexía. La empresa Abraham Construcciones resultó ganadora de la licitación, con una oferta de 3.770.992,75 pesos. Se acordó un plazo de ejecución de 365 días corridos.
El edificio, además del ahorro en alquiler, brindará mayor comodidad a los vecinos. Durante su construcción brindó trabajo directo a obreros de la construcción y generó movimiento económico en rubros indirectos.
La inversión superó los 3,7 millones de pesos, que se financiaron mediante un acuerdo entre el STJ y el Ministerio de Seguridad y Justicia de Nación.
Durante los meses siguientes la obra avanzó a ritmo sostenido y el 16 de noviembre, en coincidencia con el Aniversario de la ciudad, el edificio del Juzgado de Paz quedó inaugurado.
Enlace al video: “Inauguración del edificio del Juzgado de Paz de Ramos Mexia”
o directamente desde el reproductor:
Inauguración
Encabezó el acto de inauguración la vocal del STJ y jueza delegada de la Primera Circunscripción Judicial, Liliana Piccinini, y estuvieron presentes el intendente Patricio Colil, el Inspector de Justicia Pablo Zille, el juez de Paz Luis Arriola, juezas y jueces de paz de localidades cercanas, autoridades municipales de distintas poblaciones de la Línea Sur, trabajadores, representantes de instituciones intermedias, vecinas y vecinos.
En la ocasión la jueza Piccinini destacó la política edilicia llevada adelante por el Poder Judicial: “Cierto es que el Superior Tribunal no ha sido diseñado para realizar obra pública, pero también es cierto que llevamos concretados y proyectados 15 mil metros cuadrados de construcciones nuevas y 11 mil metros cuadrados de refacciones y mejoramientos en nuestra estructura edilicia. Este Juzgado de Paz también es la demostración palmaria de que así se ha hecho”.
Gerencia Administrativa de Cipolletti
Desde el 1 de julio de 2019 la Gerencia Administrativa de la Cuarta Circunscripción Judicial funciona en un edificio propio, en calle Sarmiento 360 de Cipolletti, en la planta superior del Juzgado de Paz. La Gerencia cuenta con dos accesos: uno lateral, independiente, por escalera, y uno por ascensor desde el interior del Juzgado de Paz.
Además de la Gerencia Administrativa se construyeron oficinas destinadas al Superior Tribunal de Justicia (STJ) y al Consejo de la Magistratura. Otras áreas como Gestión Humana, Arquitectura y Comunicación Judicial también funcionan en el nuevo inmueble.
El presupuesto oficial de la obra fue de 8.553.310 pesos y comenzó a construirse en junio de 2018. La empresa adjudicada fue “MR Services S.A”.
El inmueble cuenta con patios de aire y luz, baños públicos y privados, un office de uso general, uno para uso de la Gerencia Administrativa y otro como sala multifunción.
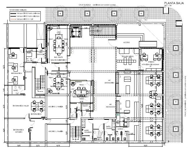
Puesta en valor del edificio judicial de Cipolletti
A fines de diciembre de 2019, el Área de Infraestructura y Arquitectura Judicial comenzó a ultimar los detalles de la documentación para la licitación de la segunda etapa de la refuncionalización del inmueble de Roca y Sarmiento de Cipolletti, un edificio propio.
La primera etapa de la intervención, que se realizó a lo largo de 2019, incluyó la readecuación del acceso, la instalación de un nuevo sistema de iluminación exterior, repintado general y colocación de pintura anti graffitti, y reemplazo del sistema de parasoles.
La segunda etapa, que se licitará durante 2020, propone una readecuación interior integral por sectores. El edificio alberga el fuero de Familia de la Cuarta Circunscripción, las Defensorías Civiles de Menores y de Pobres y Ausentes, los Equipos Técnicos Interdisciplinarios, la Oficina de Atención al Ciudadano y la Delegación de Informática que depende de la Gerencia de Sistemas.
De acuerdo con los planos elaborados por Área de Infraestructura y Arquitectura Judicial la planta baja prevé tres salas de audiencias, un sector de archivo, delegación Informática, la Oficina de Atención al Ciudadano, una mesa de entradas para las defensorías, otra para los abogados y un espacio para niños.
El primer piso será destinado para un juez o jueza de Familia, para el Centro de Atención a la Defensa Pública – CADEP – y para las Defensorías. Mientras que el segundo también incluye espacio para Juzgados de Familia, Defensorías, Servicio Social y salas de reuniones.
Se contemplaron espacios de espera en cada uno de los pisos y distintas salas de atención y sectores reservados para realizar denuncias.
Juzgado de Paz de Gral. Enrique Godoy
El 29 de julio fueron inauguradas las refacciones y puesta en valor del edificio del Juzgado de Paz de General Enrique Godoy.
Junto a la jueza de Paz Nancy Pereyra y al intendente municipal Luis Ivancich, el juez del STJ Sergio Barotto recorrió los nuevos pisos, revestimientos, vereda y pintura de la casona donde funciona el Juzgado. Las obras se realizaron con aportes del Poder Judicial y del municipio, que tuvo a su cargo la dirección de los trabajos y la mano de obra.
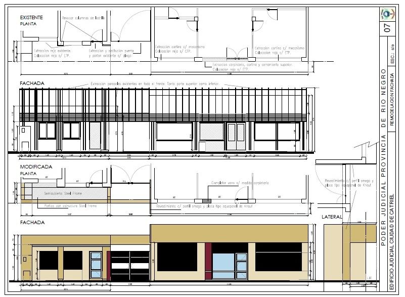
Refuncionalización del edificio del Poder Judicial de Catriel
La empresa que ganó la licitación pública comenzó en julio de 2019 a ejecutar las obras de refuncionalización del inmueble de la calle San Martin 425 de Catriel, donde funciona el Juzgado de Paz, la Casa de Justicia con la delegación del Centro Judicial de Mediación, la Defensoría, Fiscalía y un Salón de Usos Múltiples con sala de reuniones.
La obra fue adjudicada a la empresa “Las dos A Servicios”, que presentó una oferta de 6.898.695,92 pesos.
La refuncionalización incluye pintura completa interior y exterior, tratamiento de muros en mal estado con infiltración de silicona, recambio de cielorrasos, reubicación de servidor informático y tendido de red nueva, instalación eléctrica para tomacorrientes, nuevos tableros y cambio de artefactos de iluminación.
También la instalación de agua fría y caliente en los baños del Juzgado de Paz. Reemplazo del sistema de calefacción central del Juzgado de Paz y de calefactores del resto de los organismos.
Se ejecutará el tendido de gas en el Juzgado de Paz, Cejume y Sala de Reunión; se reemplazarán aberturas y se colocarán rejas de protección. En las losas se reemplazará la membrana, previa reparación de los revoques en las cargas y carpetas deterioradas.
El frente del inmueble será reparado y unificado con una estructura semicubierta, mientras que en la vereda se reemplazarán baldosas y se colocarán tres árboles.
Juicios por Jurados
Juicio por jurados
Desde el 1 de marzo de 2019 está vigente el sistema de juicio por jurados en Río Negro. Mediante la Acordada N° 04-19, el Superior Tribunal de Justicia definió que el juzgamiento mediante juzgados populares previsto en el Código Procesal Penal Ley 5020 se aplicaría a los delitos más graves cometidos a partir del 1 de marzo de 2019.
Link a noticia:
Si bien no se realizaron juicios por jurados durante el año judicial 2019, toda la infraestructura del Poder Judicial y sus equipos de trabajo estaban preparados para la inmediata activación del proceso en caso de ocurrir un delito de esa naturaleza.
Simulacros
Para afianzar las destrezas adquiridas por los magistrados, funcionarios y agentes judiciales a lo largo de dos años de capacitación para la Reforma Procesal Penal, la Escuela de Capacitación Judicial, presidida por la jueza del STJ Liliana Piccinini, llevó adelante tres simulacros de juicio por jurados en la provincia: uno en Viedma (a finales de 2018), uno en Bariloche y uno en Roca (a comienzos de 2019).
Bariloche
Un actor interpretó a la persona imputada; trabajadores judiciales ajenos al fuero penal integraron el Jurado Popular, y funcionarios y magistrados reales cumplieron los roles de la Fiscalía, la Defensa y la Judicatura, a cargo de la dirección del juicio. Agentes de la Oficina Judicial de Bariloche estuvieron a cargo de la organización y videograbación de todo el proceso.
El simulacro se realizó el 28 de febrero y duró casi 7 horas. Se debatió un caso hipotético de homicidio en ocasión de robo, agravado por la participación de un menor. El ejercicio estuvo diseñado para que la deliberación secreta del jurado y su veredicto sean auténticos, basados en las evidencias y testimonios que sí estuvieron guionados y ensayados.
El Juez de Juicio Bernardo Campana presidió el simulacro como juez profesional. Como fiscal del caso intervino el Fiscal Jefe Martín Lozada y la Defensa fue de Marcos Cicciarello, Defensor Oficial.
El ejercicio incluyó la audiencia previa de selección del jurado, y luego el juicio oral y público con la declaración de testigos y peritos y la presentación de la evidencia científica.
La simulación se desarrolló en la sala de audiencias de la planta baja del edificio Pilmayquén y fue presenciada por magistrados, funcionarios, empleados y público en general.
Roca
El ejercicio se repitió en Roca el 1 de abril, organizado por la Escuela de Capacitación Judicial en coordinación con la Oficina Judicial de la Segunda Circunscripción.
La jueza del Superior Tribunal de Justicia y Presidenta de la Escuela de Capacitación Judicial, Liliana Piccinini, participó de la actividad. Al igual que en las otras experiencias, participaron un juez penal, un equipo de fiscalía, un defensor público y numerosos empleados judiciales ajenos al fuero Penal, quienes integraron el jurado popular con identidades, ocupaciones y perfiles ficticios pero con la consigna de alcanzar un veredicto final verdadero. Del mismo modo, imputados y testigos fueron representados por agentes judiciales de organismos no penales.
El ejercicio finalizó con un veredicto unánime de no culpabilidad por legítima defensa, en el juzgamiento de un hipotético caso de homicidio calificado por el vinculo, cometido por una mujer. El jurado deliberó en secreto por unos 80 minutos hasta alcanzar el consenso.
Al frente de la audiencia, como juez profesional, estuvo el juez de juicio de Roca Oscar Gatti, en tanto que la acusación fue sostenida por el Fiscal Jefe de Cipolletti Santiago Márquez Gauna y la defensa estuvo a cargo de la Defensora Oficial de Villa Regina Celia Delgado.
OFICINA JUDICIAL - SORTEO DE JURADOS POPULARES
Para febrero de 2019, más del 40 por ciento de los ciudadanos y ciudadanas de Río Negro que habían sido sorteados como potenciales integrantes de un jurado popular ya estaban en condiciones de ser convocados, habiéndose finalizado las notificaciones, certificaciones y declaraciones juradas necesarias.
Link a noticia:
En el inicio del año judicial, el 41 por ciento de las personas sorteadas en 2018 ya habían completado ante las Oficinas Judiciales toda la información necesaria y se había acreditado que no presentaban inhabilidades legales, por lo que ya estaban en condiciones formales de ser convocadas ante un eventual juicio.
Las notificaciones a potenciales jurados se realizaron mediante Correo Argentino, con notificadores del Poder Judicial y con la Policía Provincial.
El intenso trabajo de la Oficina Judicial en este punto radica en contactar a cada persona sorteada, gestionar que la persona reciba (o descargue de la página web del Poder Judicial), luego complete y finalmente envíe su formulario de declaración jurada con información personal. Esos datos son necesarios para poder verificar si la persona presenta alguna de las inhabilidades estipuladas por la normativa.
Para optimizar la coordinación de las acciones de las Oficinas Judiciales de las cuatro Circunscripciones y la Dirección General, de cara a la realización de los juicios por jurados, en abril se realizó en Viedma un encuentro provincial encabezado por el Director General de las Oficinas Judiciales, Ing. Fabián Mitidieri. Junto a los Directores de cada Ciudad Cabecera, se abordó el estado de situación de la implementación del Juicio por Jurados Populares y las acciones venideras, como la publicación del listado definitivo de ciudadanos seleccionados en el Boletín Oficial.
Link a noticia:
Información en la web
Las
personas interesadas en conocer más sobre el sistema, pueden
consultar la
página
. Allí
se puede acceder a videos explicativos, textos con las diez claves
del nuevo mecanismo y la normativa por la que se rige.
Allí también se pueden consultar los listados de las personas sorteadas en cada circunscripción y hay canales de Contacto para evacuar consultas.
La ciudadanía puede acceder allí a videos explicativos, las claves del nuevo mecanismo y la normativa por la que se rige.
Un apartado cuenta con el programa de formaciones implementado por la Escuela de Capacitación Judicial, cuyo cronograma anual tuvo como una de las premisas principales esta temática. También se pueden consultar algunas de las obras de adecuación edilicia que el nuevo sistema requiere.
Preguntas frecuentes
El Superior Tribunal de Justicia y la Procuración General elaboraron, a través del Centro de Planificación Estratégica, un instructivo básico que responde a las preguntas frecuentes sobre el sistema de juicio por jurados, sobre la base de las inquietudes que más se repiten en las Oficinas Judiciales, en los medios de comunicación y por la experiencia acumulada en capacitaciones y simulacros.
Bajo el título: “Culpable o no, deciden los ciudadanos”, da cuenta de que “con la implementación del juicio por jurados, la ciudadanía podrá, a través de un veredicto, definir directamente sobre la culpabilidad o no de una persona acusada de haber cometido un delito grave”.
El video explicativo está disponible en:
Enlace al video: “JUICIO POR JURADOS - 12 miembros”
o directamente desde el reproductor:
Adecuaciones edilicias
En Cipolletti
La empresa que ganó la licitación trabajó en el edificio del fuero penal de Cipolletti, ubicado en Urquiza y España.
En enero de 2019 se derribaron algunas paredes para generar el espacio para la sala de juicios por jurados, que requiere espacios adecuados no sólo para los integrantes del jurado sino también para testigos, detenidos y público, si se tiene en cuenta que se juzgarán los casos de mayor repercusión.
En Roca
También durante febrero de 2019 se culminó la sala de deliberación para el jurado en Roca. Se trata de las oficinas que originalmente correspondían al Superior Tribunal de Justicia en la Ciudad Judicial de Roca. La sala se conecta por una puerta reservada al Auditorio de la Ciudad Judicial, donde se realizarán los juicios. Con 42 metros cuadrados, cuenta con comodidad de sillas y sillones para todos los integrantes del jurado, acceso a sanitarios privados, teléfono y conexión al sistema de videoregistración de audiencias, para el caso de que necesiten repasar alguna instancia del debate durante la deliberación.
Link a noticia:
En Viedma
Se reubicaron las oficinas que estaban situadas al lado del Auditorio, en el edificio principal del Poder Judicial; se demolieron paredes y sanitarios, todo para permitir una unificación de distintos ámbitos y su conversión a la sala de deliberaciones. Se previó un sector aislado con sala, una pequeña cocina y sanitarios para la deliberación secreta del Jurado.
En Bariloche
Las previsiones para el juicio por jurados se realizaron en 2018 con las refacciones generales al edificio del fuero Penal y se finalizaron detalles durante la feria judicial 2019.
Congreso
Internacional de Juicio por Jurados, Sistema Acusatorio y Actualidad
Procesal
El quinto Congreso
Internacional de Juicio por Jurados se desarrolló en Villa La
Angostura del 16 al 17 de mayo de 2019, organizado por el Foro
Patagónico de Tribunales Superiores de Justicia, organismo por
entonces presidido por el vocal del Superior Tribunal de Justicia
rionegrino Sergio Barotto.
Expusieron juristas, investigadores y expertos nacionales e internacionales
sobre distintas áreas relacionadas con el sistema de enjuiciamiento mediante jurados populares.
En la apertura del congreso se destacó la presencia de Héctor Granillo Fernández, Presidente de la Asociación Argentina de Juicio por Jurados.
Las temáticas de los paneles fueron: “Análisis del sistema de juicio por jurados Neuquino” a cargo de la PhD. Valerie Hans, profesora de la Universidad de Cornell, y Carla Pandolfi, Coordinadora de la Comisión Interpoderes de la Reforma Procesal Penal de Neuquén.
Luego se desarrolló la charla “Proceso penal acusatorio y juicio por jurados, perspectivas en la Patagonia” de la cual participaron: María Soledad Gennari de Neuquén, Alejandro Panizzi de Chubut, Adriana Zaratiegui por Río Negro, Marcelo Luis Pagano de La Pampa.
Otro panel fue sobre los “Nuevos desafíos que plantea el juicio por jurados” a cargo de Alfredo Pérez Galimberti, Vicepresidente INECIP, quien expuso sobre el tema “Audiencias de control de prueba y estándares probatorios”. Además María Inés Piñeiro Bertot, jueza del Tribunal de Juicio Oral de Buenos Aires habló sobre el tema “Prohibición de instrucciones sobre los hechos”.
Siguió la charla sobre “Innovación tecnológica en el servicio de justicia” y finalizó el primer día con “La expansión del juicio por jurados en Asia”, dictada por el PhD. Hiroshi Fukurai, Profesor de la Universidad de California.
En la segunda jornada se desarrolló el panel sobre “Revisión de los veredictos en los juicios por jurados”, con las exposiciones de Andrés Harfuch – INECIP-; Sebastián Amerio -Corte Suprema de Justicia de la Nación-; Fernando Zvilling - Tribunal de Impugnación de Neuquén.
Luego fue la conferencia sobre “Pasado, presente y futuro del jurado clásico en Europa”, a cargo de Nikolay Kovalev, profesor de la Universidad de Toronto.
Le siguió el panel de “El rol de la fiscalía en el sistema acusatorio”, a cargo de José Gerez, Fiscal General de Neuquén, y Fabricio Brogna López, Fiscal General de Río Negro.
Desde las Oficinas Judiciales expusieron los “Desafíos de la organización del juicio por jurados”, a cargo de David Ojeda, por la OFIJU Neuquén, y Fabián Mitidieri, Director General de Oficinas Judiciales de Río Negro.
El cuarto panel fue sobre “Reforma procesal penal: Los casos de Neuquén y Río Negro”, a cargo de Carla Pandolfi, Coordinadora de la Comisión Interpoderes de la Reforma Procesal Penal de Neuquén, y Verónica Rodríguez, Presidenta del Foro de Jueces Penales de la II Circunscripción Judicial de Río Negro.
El Congreso finalizó con las Conferencias de Shari Diamond, profesora de la Universidad de Chicago, sobre el tema “Jurados y Jueces”, y “Una experiencia compartiva”, a cargo del ex juez y actual embajador de Estados Unidos en Argentina, Edward Prado.
Link al sitio web del Congreso Internacional de Juicio por Jurados
Links a las presentaciones rionegrinas en el Congreso
Iniciativas Parlamentarias
ACORDADA 013-19 STJ SGAJ
Aprueba el proyecto de iniciativa legislativa, Reforma de la ley 5190. Objetivo creación de un Juzgado de Familia en la ciudad de Viedma.
El Superior Tribunal de Justicia remitió a la Legislatura de Río Negro una iniciativa para la creación de un nuevo Juzgado de Familia en Viedma. La propuesta está basada en el informe estadístico que da cuenta un constante crecimiento de las causas, especialmente de violencia doméstica.
Viedma cuenta con dos Juzgados de Familia y la iniciativa legislativa del STJ prevé la creación de un tercero.
“La creación de organismos judiciales responde a la demanda de nuestros ciudadanos y a al necesidad de facilitar el acceso a la Jurisdicción”, dice la Resolución. “La incorporación se fundamenta específicamente en la necesidad de atender la mayor demanda que la conflictiva de familia presenta y de lograr una mejora en la calidad del servicio”, agrega.
La instrumentación de este nuevo organismo se ejecutará con la modalidad de gestión implementada inicialmente en Bariloche, que incluye una Oficina de Tramitación Integral, “cuyo objetivo ha sido modernizar la gestión, reorganizar el fuero y optimizar el aprovechamiento de los recursos materiales y el factor humano”.
Enlace a la Acordada 13/2019 :
ACORDADA 022-19 STJ SGAJ
Aprueba proyecto de iniciativa legislativa de creación de una ley integral de los Métodos Autocompositivos de Resolución de Conflictos (MARC).
Enlace a la Acordada 22/2019 :
Nuevo Código Procesal de Familia
Remisión Anteproyecto sobre la creación del Código de Familia-Ley 5396, elaborado en el ámbito de Planificación Estratégica.
La Legislatura de Río Negro aprobó por unanimidad el Código Procesal de Familia, que se implementará a partir del 2 de marzo de 2020.
El Código se basa en los principios de oralidad, celeridad del trámite y sencillez del lenguaje, al tiempo que establece pautas claras para la derivación al fuero penal (Ministerio Público Fiscal) de los casos que impliquen violencia física y, en consecuencia, configuren delitos. Además, define con más precisión los roles de los operadores y operadoras judiciales en los expedientes y las acciones a cargo del Poder Ejecutivo en los procesos relacionados con niños, niñas y adolescentes.
La norma se consensuó en el ámbito de la comisión de “Asuntos Constitucionales y Legislación General”, donde participaron legisladoras, legisladores, representantes del Poder Judicial y de los colegios de Abogados.
Planificación Estratégica
El anteproyecto fue inicialmente elaborado en la unidad de planificación del Fuero de Familia del Poder Judicial, que encabezó la jueza del STJ, Liliana Piccinini. Durante casi dos años se trabajó en un texto junto a la participación de las juezas y jueces de Familia y de las Cámaras Civiles, de las Secretarías de dichos Juzgados y representantes de los Colegios de Abogados de las cuatro circunscripciones de la provincia.
Plan Estratégico Consensuado
El trabajo que se realiza a través de la Planificación Estratégica Consensuada liderada por el STJ, es un proceso que representa un debate abierto, un trabajo colaborativo con acuerdos, soluciones y compromisos. A más de tres años de la Implementación Estratégica, donde las primeras Unidades de Planificación empezaron este camino, muchas Unidades avanzaron más allá de los tres proyectos planteados como premisa inicial, motivados por la necesidad de cambio y porque entendieron que esta herramienta es útil para facilitar y/o mejorar el trabajo cotidiano.
Durante todo el año 2019 se llevaron adelante diferentes reuniones presenciales, por videoconferencia y correo electrónico que fueron necesarios a la hora de evaluar cada paso en el proceso de la planificación, estableciendo plazos y resultados para concretar los proyectos que cada área estimó prioritarios.
El Superior Tribunal de Justicia mediante la Res. 286/2019 - SGyAJ STJ, convocó a través del Centro de Planificación Estratégica, a las Jornadas de Planificación 2019, siendo la tercera realizada en la provincia. Esta actividad se desarrolló durante los días 10, 11 y 12 de junio en la ciudad de Viedma y participaron de este encuentro magistrados, funcionarios y empleados judiciales de toda la provincia, así como representantes judiciales de todo el país. El objetivo de este encuentro estuvo dirigido a que nuevos organismos del Poder Judicial, comenzarán a trabajar en Unidades de Planificación para continuar profundizando la Planificación Estratégica Consensuada como política pública del Poder Judicial. En esta oportunidad iniciaron esta tarea los Juzgados Civiles, los Equipos Técnicos Interdisciplinarios (ETI) de los Juzgados de Familia, la Auditoría Judicial General y la Secretaría del Consejo de la Magistratura.
Para conocer más sobre todo lo trabajado en el Plan Estratégico Consensuado.
Enlace al Informe de Gestión 2019
Enlace al Libro 1 - Plan Estratégico Consensuado

